|
对老百姓来说 安居才能乐业 “居者有其屋” 是最基本的幸福追求  在黄海新区 滨海港片区 海滨港城安置区一期项目施工现场 31栋崭新的高层住宅整齐排列 200余名工人根据不同的分工 有的在进行内部粉刷和电路安装 有的在忙着地下车库的管道焊接 整个施工现场繁忙而有序 …… 一个崭新的宜居新家园已初现雏形
海滨港城安置区项目作为海滨港城建设的重要基础配套项目之一,是黄海新区重点打造的民生安居项目之一,也是市委、市政府的综合性重点民生工程。一期项目于2021年开工建设,用地面积214亩,总建筑面积约43万平方米,建设31栋高层住宅,设置机动车位2824个。项目建成后,将进一步改善当地百姓的居住条件,打造集居住、商业、教育为一体的居住生态圈,让更多百姓圆安居梦。
据项目负责人介绍 目前,内部装饰工程基本完成 外墙涂料的样式与色彩已确定 即将进行施工 绿化种植、电梯安装 以及部分附属设施正在施工 争取6月份竣工交付 今年下半年 期盼已久的百姓们 就可以拿房装修啦~
安置房建设事关百姓民生 其工程品质更是关键 为让安置居民能提前体验新居环境 了解安置房的施工质量和户型设计 2022年7月份 项目部开始进行样板房的设计与施工 目前所有样板房已经全部完工 下一步将根据实际情况 组织部分居民代表实地看房 让他们身临其境体验未来新家的美好
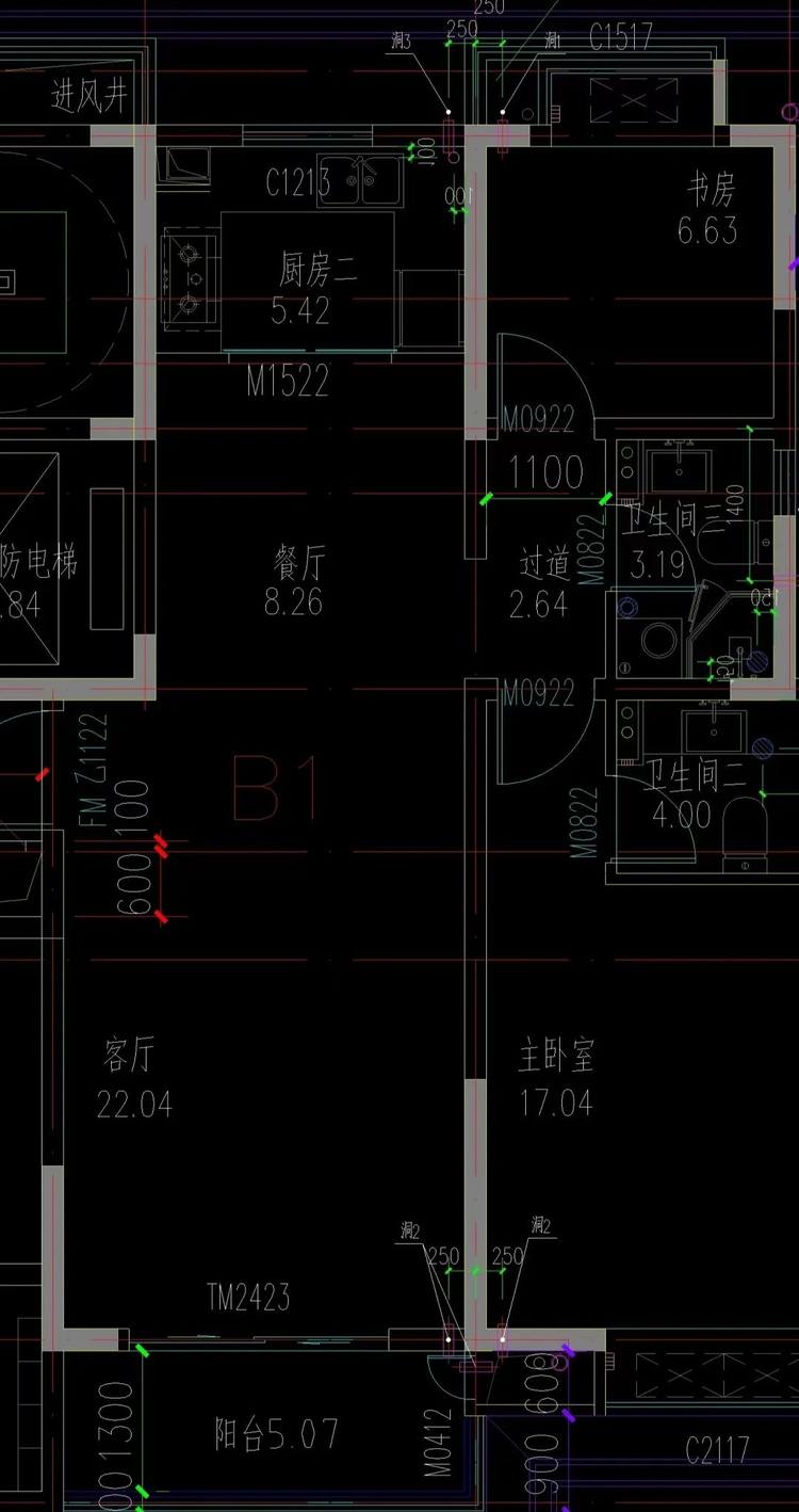
考虑到不同家庭结构的居住需求,港城安置区规划有二室一厅、三室一厅、四室两厅等多种户型,共计2260套可供被征地拆迁户选择。据负责人介绍,随着安置小区的建设进入尾声,选房工作提上了日程,预计在6月份开展,届时被征地拆迁户都可住进新房。 安置区户型图如下 有需要的小伙伴快来看看! (上下滑动查看图片)
安置区1、2#地块
 C1户型图(面积60.93㎡)
 C2户型图(面积67.95㎡)
 D户型图(面积40.4㎡)
安置区3#地块
 一楼A1户型图(面积90.57㎡)
 一楼B1户型图(面积74.29㎡)
 二楼A户型图(套内面积106.88㎡)
二楼B户型图(面积91.33㎡)

“安居梦”越来越近 一起期待吧!
|